










Hunstad Sør - Bjørnhollo - 2 eneboliger helt nede i sjøkanten
Meld interesseLinkPro Bolig er et selskap i LinkPro-konsernet. Vi regulerer, utvikler og bygger ut boligfelt i egen regi. Vi har lang og allsidig erfaring med boligutvikling.
Vår ambisjon er å levere "mye bolig for pengene" gjennom god standard, kvalitet, godt design og gjennomtenkte løsninger - uansett målgruppe og prisklasse.
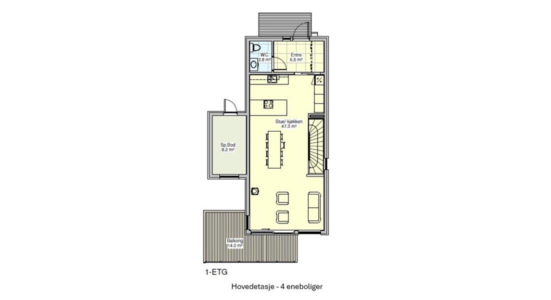
Boligene bygges over to plan med hovedinngang fra øverste plan.
Utgang til hage fra sokkeletasjen.
Oppstart vil skje i takt med salg.
Hovedetasjen består i hovedsak av kjøkken og stue. I tillegg er der entre og et gjestetoalett.
I sokkeletasjen er det blant annet 3 soverom, et stort bad og hall.
Boligene leveres med god standard som:
1-stavs hvitlasert eikeparkett på gulv i de fleste oppholdsrom. 60x60cm gulvflis på bad, wc og i entre. Badet har 60x60 cm flis på vegg.
I kjøkken/stue, bad og entre leveres takbelysning som downlights med dimmer. Det leveres også takbelysning med dimmer i de fleste øvrige rom.
Det leveres en flott trapp med eiketrinn, rustfrie spiler og malte vanger og håndlist.
Boligene leveres med kjøkkeninnredning med hvitevarer og baderomsinnredning fra Sigdal
Standard bolig leveres med utvendig sportsbod og biloppstillingsplass. Carport eller garasje kan leveres som tilvalg.
Oppstart planlegges i takt med salg, og byggetid antas å bli ca 1 år fra oppstart av selve boligen.





Hunstad Sør - Bjørnhollo - 2 eneboliger helt nede i sjøkanten
Meld interesseLinkPro Bolig er et selskap i LinkPro-konsernet. Vi regulerer, utvikler og bygger ut boligfelt i egen regi. Vi har lang og allsidig erfaring med boligutvikling.
Vår ambisjon er å levere "mye bolig for pengene" gjennom god standard, kvalitet, godt design og gjennomtenkte løsninger - uansett målgruppe og prisklasse.